مجتمع مسکونی اشراق


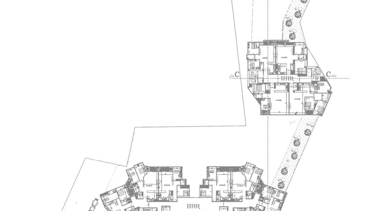
برجهای اشراق متعلق به شرکت عمران و مسکن اصفهان در سایتی به مساحت ۵۰۰۰ مترمربع و در ۱۲ طبقه طراحی شده است. در طراحی این پروژه ۴ طبقه پارکینگ در زیرزمین در نظر گرفته شده است. زیرزمین اول و طبقه همکف مجموعه به کاربری تجاری اختصاص دارد.
درباره پروژه:


۱۳۹۸
اصفهان
مساحت زیربنا: ۵۰۰۰ متر مربع
پروژه در حال اجرا
کارفرما شرکت عمران و مسکن اصفهان


پلان طبقات به صورت تیپ طراحی شده و کاربری مسکونی دارند. طبقه همکف این مجموعه با کاربری تجاری، بدنه خیابان را تشکیل داده است، همچنین در طراحی نمای این برج ها از مصالحی همخوان با بدنه شهری موجود استفاده شده است.


گالری تصاویر








