مجتمع مسکونی مظاهری


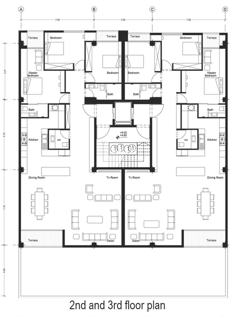
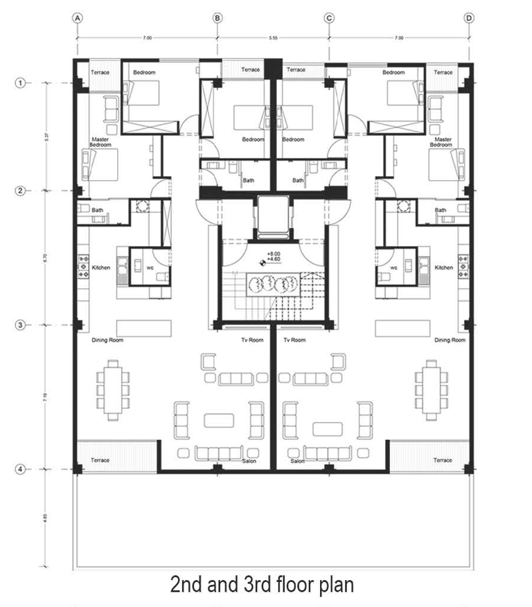
ساختمان مسکونی مظاهری واقع در زرینشهر اصفهان، در زمینی به مساحت ۴۹۲ مترمربع و با زیربنای ۲۵۵۰ مترمربع و در ۷ طبقه طراحی گردیده است.
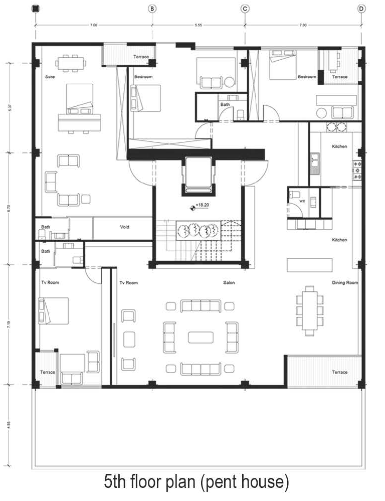
در طراحی این ساختمان یک واحد سوئیت مهمان و همچنین یک واحد پنتهاوس با متراژ ۳۶۷ مترمربع در نظر گرفته شده است.
درباره پروژه:
۱۳۹۸
زرینشهر، اصفهان
مساحت زیربنا: ۲۵۵۰ متر مربع
پروژه در حال اجرا
کارفرما خصوصی






گالری تصاویر










