
ساختمان اداری شرکت حمل و نقل - تیپ یک


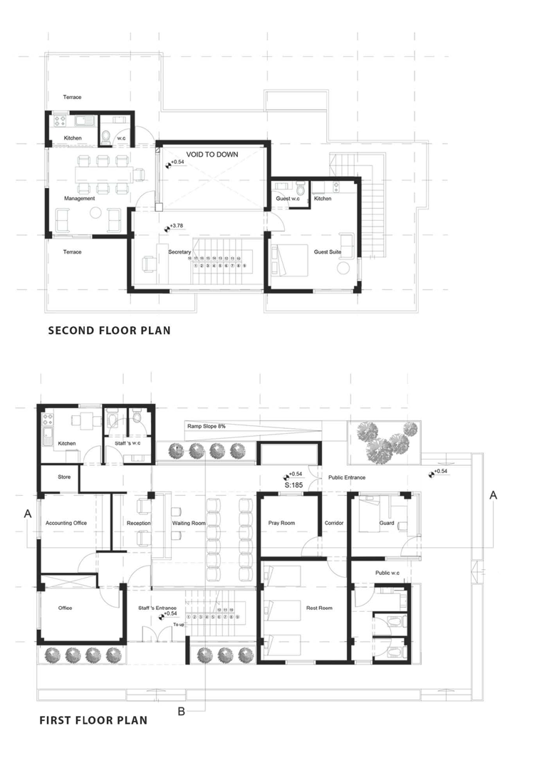
هر بلوک این مجموعه با مساحت ۴۶۵۰ مترمربع (با سطح اشغال ۲۰۰ مترمربع) و در قالب دو تیپ ساختمان دو طبقه شامل اداری، خدماتی، مدیریتی و همچنین استراحتگاه رانندگان طراحی شده است. همچنین در هر بلوک، سولهای به متراژ ۱۰۰۰ مترمربع جهت انبار و بارگیری خودروهای سنگین طراحی شده است.


درباره پروژه:


۱۳۹۹
زرینشهر، اصفهان
مساحت: ۴۶۵۰ متر مربع
پروژه در حال اجرا
کارفرما شرکت شهرکسازان زرین سپاهان
شهرک حملونقل زرینشهر به منظور کاهش ترافیک و آلودگی سطح شهرستان اصفهان توسط شرکت شهرکسازان زرین سپاهان و با همکاری شهرداری زرینشهر بنا نهاده شده است.
زمین موردنظر به منظور طراحی ساختمانهای اداری و محوطه که شامل ۳۶ بلوک با سطح اشغال ۲۰۰ مترمربع بوده و در قالب دو تیپ ساختمان اداری پیشنهاد گردید.


گالری تصاویر
















