ساختمان اداری شرکت حمل و نقل - تیپ دو




درباره پروژه:


۱۳۹۹
زرینشهر، اصفهان
مساحت: ۴۶۵۰ متر مربع
پروژه در حال اجرا
کارفرما شرکت شهرکسازان زرین سپاهان
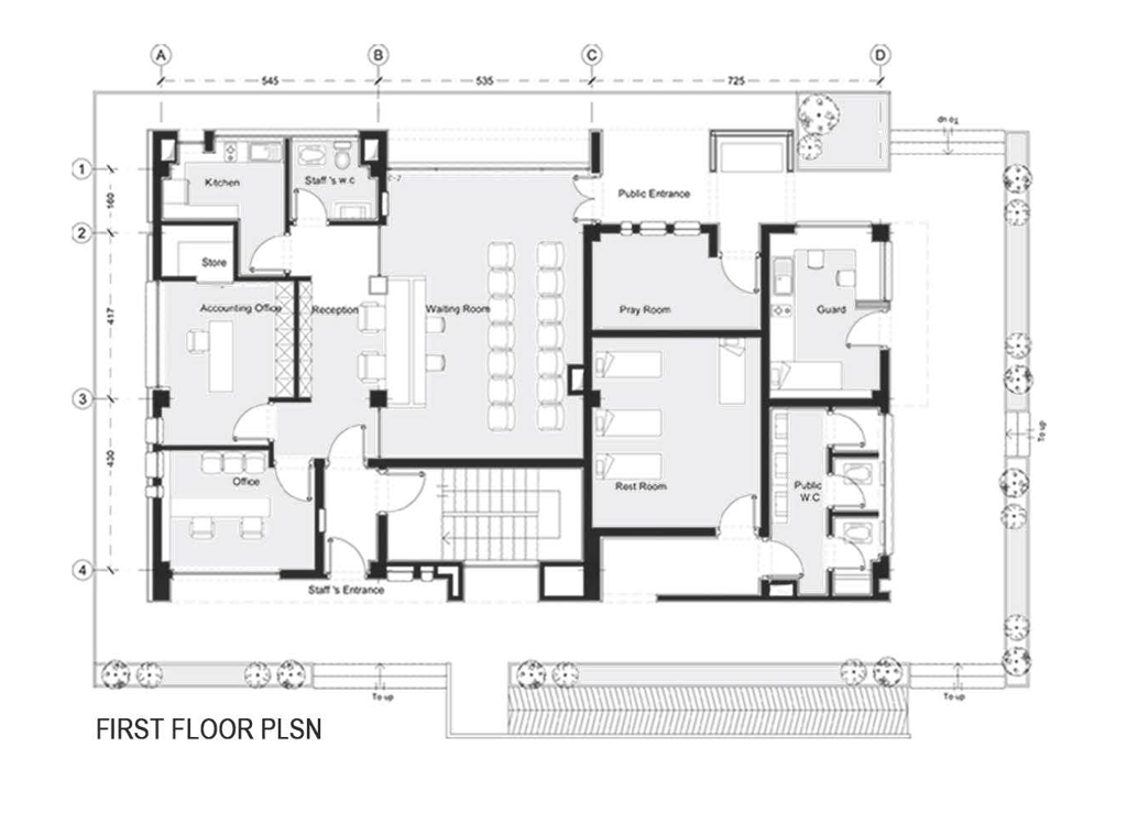
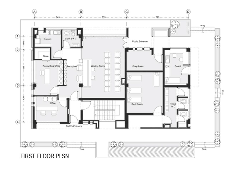
شهرک حملونقل زرینشهر به منظور کاهش ترافیک و آلودگی سطح شهرستان اصفهان توسط شرکت شهرکسازان زرین سپاهان و با همکاری شهرداری زرینشهر بنا نهاده شده است.
زمین موردنظر به منظور طراحی ساختمانهای اداری و محوطه که شامل ۳۶ بلوک با سطح اشغال ۲۰۰ مترمربع بوده و در قالب دو تیپ ساختمان اداری پیشنهاد گردید.


گالری تصاویر










