
ساختمان تجاری میدان سیمبولیک - بلوک دو


بلوک C شامل پنج طبقه است که جهت استقرار یک مجموعه تجاری اداری طراحی شده است.در این بلوک مجموعه فضاهای خدماتی، خدماتی از جمله رستوران، فضای بازی و فودکورت پیشبینی شده است.


درباره پروژه:


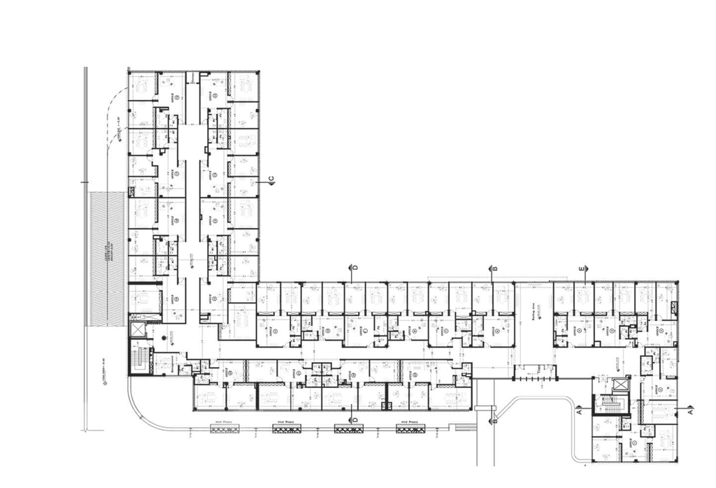
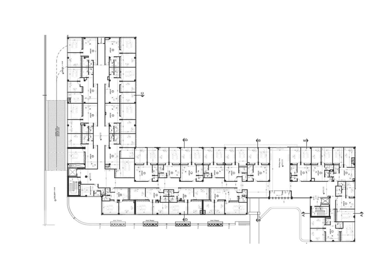
ساختمان تجاری میدان سمبولیک، جهت استقرار یک مجموعه تجاری طراحی شده بود. این مجموعه شامل دو ساختمان پنج و چهار طبقه میباشد. پلانهای اولیه مجموعه تجاری از لحاظ روابط عملکردی و چیدمان فضایی بازنگری شد و نمای جدیدی برای مجموعه طراحی شد.
همچنین در این مجموعه فضاهای رفاهی و خدماتی از جمله رستوران، فضای بازی و فودکورت پیشبینی شده است.
بلوک B مجموعه تجاری-اداری میدان سمبولیک با زیربنای ۱۵۰۰۰ مترمربع و در ۴ طبقه طراحی گردیده است. کاربری طبقات زیرزمین به پارکینگ و طبقه همکف و اول به کاربری تجاری و طبقه دوم به کاربری اداری اختصاص یافته است.


گالری تصاویر












